Per a qui treballem
Activitats i assessorament ambiental a empreses
Einesa enginyeria, sl. 2008
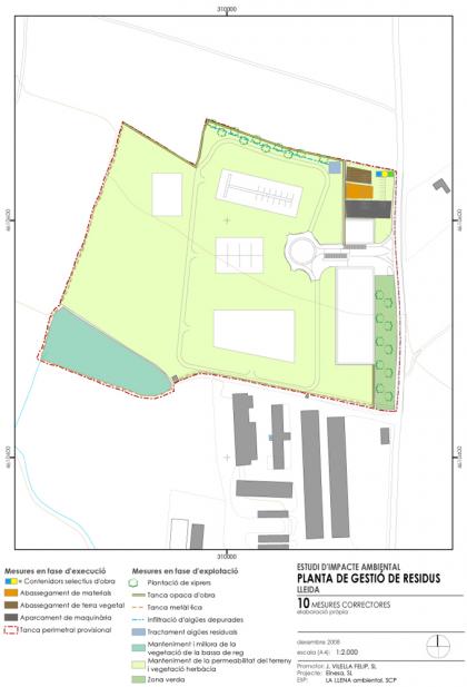
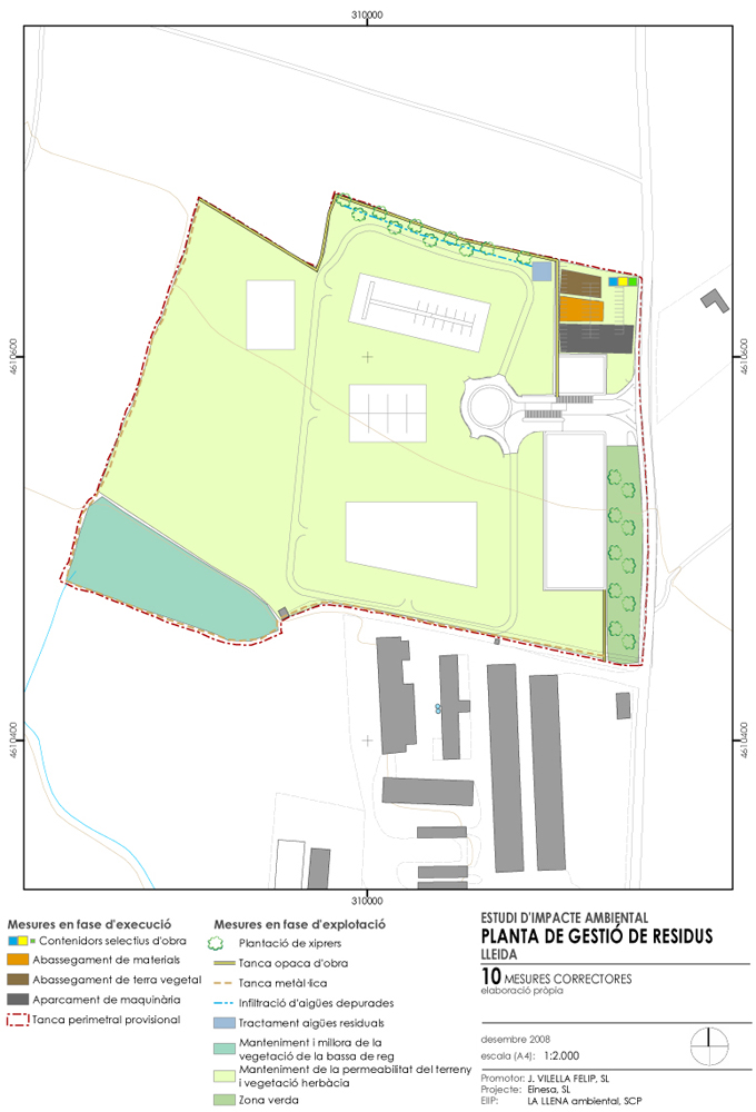
Estudi d’impacte ambiental i estudi d’integració paisatgística d’un centre de gestió de residus dins d’un PE en sòl no urbanitzable

Abadia, 8
25400 Les Borges Blanques
Tel 973 143 038
Activitats i assessorament ambiental a empreses
Einesa enginyeria, sl. 2008
La Llena - Serveis i projectes ambientals
Abadia, 8
25400 Les Borges Blanques
Tel 973 143 038